中文En
SB-ZL型电机直联…
SB-ZL(U)型电…
SB-DL型立式多级…
SB-ZLW型混水离…
SB-CJ型柴油机直…
CDLF不锈钢立式多…
TC型压力容器式水除…
ZC型组合式水除污器…
ZT型锥筒除污器
SB-GW型立卧两型…
SB-P型轴开式单级…
SB-S型轴开式单级…
一次网混水供二次网的二级泵供热系统
作者: ‖ 时间:2014-03-19 ‖ 来源: ‖ 点击:6929

 摘要 组合了一次网二级泵和混水供二次网的二种供热方式,不用换热设备。是目前能耗最少、投资最省、占地最小、管理最便、效果最好的二次供热系统,可能就是二次供热方式的终极产物。关键在于能否严格控制失水。

关键词 二级泵 混水循环泵机组 循环水平衡 失水

1 现状
   
在全国供热行业中多数单位都采用热水锅炉提供热源的间接式水循环供热系统。多年来广大专家和业内、外精英们对此在理论和实践上作出了不懈的努力和奋斗,新技术、新装备等不断推广应用,使这一系统的综合技术水平和经济效益获得较好较快的提升。又在这基础上与时俱进,不断技术创新,在近二年来推出了一次网二级泵(接力泵)循环系统并一举成功,取得很好的效果和效益,得到了业内的充分认可和进一步的扩大推广,而且对此的相关技术、设备以及二级泵分布变频自控调节等已日趋完善、成熟,比传统一次泵系统前进了一大步。但是在二次站还需应用换热设备,所以一次水和二次水系统还存在换热设备的阻力损失和热损失,可说还美中不足。自八十年代起至今就有些供热单位采取了一次水和二次循环水正压混合供二次网的所谓混水供热系统。虽然不用换热设备,减少了这二种水循环的局部阻力和提高了一次水热源的利用效率,从而降低了电和煤耗。但仍使用大中型高扬程大功率的一次网热源循环水泵,存在前后工程配置与运行中互相矛盾等的老问题不说,一次热源水在各热力站的定量分配仍像传统系统中由掐阀门一类手段来调节,一是前后左右难以调得均匀,二是掐阀门人为增加了局部阻力,也就是增加了水泵无效电耗。从以上分析可知现有的一次网二级泵系统和混水供热系统二者都各具优势,但是还尚存不足或弊端。在此情形之下,很自然地思考一个问题,为什么不能对这二者扬长避短,把二者的优势组合起来?在这一思路驱动下,这二年来对现有的这二种新系统进行了认真分析研究,并分别建议有关用户进行了实施,都比原有传统系统提高和改善了供热效果,同时节能降低了运行成本。在此基础上,本文提出了二者优势合而为一的《一次网混水供二次网的二级泵供热系统》,(见图一)供大家讨论。

2 本文系统介绍

2.1 本文系统的一次网二级接力泵的流程和形式与现有一次网二级泵系统基本相同,也就是在锅炉房中的一次水一级泵只负责内网的一次水的加热循环,这一加热水循环的起点和终点只到锅炉房内或外部某个合适处的一次供回水干管之间连通管的两端连通点。而一次水的二级接力泵现有二级泵系统是装置在各热力站热交换器的一次水进口或出口进行接力循环,但本系统由于在各热力站采取混水供而不用热交换器,所以这一次水的二级接力泵的吸入管是连接在各热力站中二次网混水循环水泵吸水母管上。这一不同点明显优点是:由于不用换热设备就省去了810m 的阻力损失。显然这二级接力泵的扬程可比现有单纯二级泵减小810m,就可以降低一个水泵电机档次或变频调节潜力更大。仅这二级泵单项可再节电约20%以上。

2.2 本文系统的混水供,从名称上看似乎与现有在运行的或以往相关资料中推荐的一样,而实质上和循环流程结构等完全不一样。而是采取无极可调至趋向零压力的一次热源水进入二次网混水循环泵的吸入支管中与同时进入的二次网回水进行负压端混合,通过这二次网混水循环泵将混水全开放地送入二次网,不需掐调出口阀门,保证了最小阻力状态,如二次网对择取混水热量有变化时,可变频调节二级回水接力泵的工况回水量Q4(见图三),就会相应改变一次热源水的吸入量Q1,始终可保持Q4=Q1,达到一次水供回循环水平衡。既满足了热用户的需要又获得了最佳节能效果。这是现有在运行的和资料中介绍的混水供系统都做不到的。如现有在运行的混水供系统虽然也不用换热设备等减小了二次网局部阻力1012m 似乎相同,但由于调节混水比采取掐阀门手段,势必造成水泵的压头损失,使得不用换热设备省下的1012m 阻力大打折扣。现有相关资料中介绍的混水供系统,经客观分析和研究,明显可见还存在大量的水泵无效电耗。因此本文推荐的混水供系统至少可比以上现有的二种混水供系统可再节电约30%

3 分析对比

3.1 与现有一次网二级泵系统比,一次水一级泵的设置形式和调节方法是完全一致的。而二级泵的配置扬程还可低810m 可降一个电机档次,另二次网混水循环泵可低1015m 扬程,降低近2 个电机档次。凭这二项明显可比现有单纯二级泵系统在已节电的基础上再节省用电25%以上。

3.2 由于本系统二次网中没有换热设备,就可比现有单纯二级泵系统至少减少10%的热损失,简单地可说成至少省10%以上的煤或其它能源。又因多数单位的热交换器在实际运行过程中堵塞状况较普遍,严重降低了热交换效率和大大增加了局部阻力,也等于影响了二种循环水泵的性能和出力,随之带来的是降低了供热质量。如果将这一块间接的影响及损失算进去,那岂止是省10%以上煤的一种数据?

3.3 由于现有在用的混水供系统采取高压一次水掐阀门调节混水比,一是增加了水泵无效电耗,二是很不易调节合适的混水比和各热站的一次水分配。就必然存在前后差异和局部不热老问题,所以为了解决此均匀问题至少多消耗一次热源水510%,等于多耗了同等量的煤和电。尤其锅炉房或首站中,仍采用高扬程大功率热源循环水泵,其水泵无效电耗高、噪声大,工程前期面积不到位时用不了,而今后如增扩些面积就不够用,又必须换成更大的泵。所以说现有在用的混水供系统还是没有摆脱解决这一公认的、历来困惑着广大业内人士的传统头痛问题。另外现有相关资料中推出的混水供方案,经理论分析发现,其所设计的加压混水泵产生的无效电耗大的惊人,至少比本文混水供系统多用电约30%不说,混水比也和现有在用的混水供系统一样不易调节,故浪费热源多耗煤的状况同样存在。故本文作者认为完全没有工程实际应用的可行性。以下针对现有的新系统和传统老系统归纳列表估算对比:

表一

4 可行性及相关技术要求

4.1 由于当前一次水二级泵分布变频调节系统在近二年在多个单位获得成功,不用换热设备的大面积混水供二次网系统也在好几个单位上马并运行良好。现今这二种供热行业的节能新系统都各具节电等优点和不足,现在如何将这二种现有新系统的优点融合为一体就是本文的宗旨。但是据一般的信息反映本文新系统还无前人真正实施过,因此自然会有一串又一串的疑问和担忧,想必也很正常。其实要解释这一串串的质疑和担忧很简单,只要说现有二级泵和较大面积混水供系统存在的疑问和担忧的实质问题是一样的,无非主要是失水和水质处理问题。既然它们二个已成功可行了,不就是间接地证明了本文系统完全应该具备等同的可行性吗?

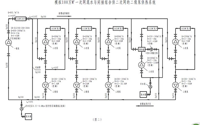
4.2 本文系统由于普遍用户散热器的耐压标准大都在1.0Mpa 级以下,所以只适合供20 层以下的楼宇。若在所供区域内有20 层以上的高层,其热力站内就必须按常规使用换热设备,按本文系统(图二)一次网混水与间接组合供二次网的二级泵供热系统示意图的基本方法去实施。只是二次网串入换热器后将增加1012m 局阻,所以相应个别处理这二次网循环水泵的扬程即可。

4.3 本文系统所供面积内用户的散热器都必须采用1.0Mpa 耐压级的。地板供热不受此设定,但对其耐压试验压力也需大于等于1.0Mpa

4.4 能否采纳本系统的首要关键是必须杜绝一次和二次网的跑冒渗漏和人为失水问题。系统总失水量最好有效地控制在0.1%以内。

4.5 在供热行业中无论采用哪种循环水系统,失水问题都是大忌不允许的,但是恰恰很多单位客观存在,有的甚至还较严重。不过而不能因为客观存在就认为是天经地义来因噎废食,那一切技术创新节能新事物都将成为可望不可及的摆设。为此个人认为必须针对各单位不同的实际状况作出调查和分析,失水问题到底出在哪一环节,认真切实有效地采取杜绝措施。无论什么供热系统如果连这个问题也解决不好,那节能和供热质量完全是一句空话。

4.6 本文系统更适合新建或准备新建的供热网,新建小区二次网是更不应该再存在老小区这些传统失水老问题了。所以考虑到在整个供热网中若还有一时解决不好失水问题的老区域,可以因地制宜地根据各单位的具体情况,按(图二)做成有换热器组合供二次网的二级泵供热系统。也就是若失水能控制在0.15%以内的二次网按(图一)做,暂时若还达不到此条件的二次网按(图二)做。灵活机动,一切存在的现实疑虑和问题都能迎刃而解。

4.7 本文系统原则上只在锅炉房中的一次水回水干管上设置一个补水定压泵点,水处理的水质要求与原有传统系统要求相同。若供热网面积特别大,热力站很多,则按实情按需在区域中某一个或几个热力站中增添区域性补水定压点。

4.8 建议一次网和二次网水泵吸水母管上的除污器,最好应用一种立式旋转恒定阻力损失在1.2m 以内又能自动或手动排污的新式除污器。而现有传统的老除污器问题很大。一是影响水的清洁度,二是不能保证恒定阻力损失,在使用季节中堵塞程度不一,严重影响循环水泵性能和出力。广泛的实践反复证实除污器貌似很简单,但恰恰是保障水循环稳定可靠的至关重要的设备。

4.9 关于本文系统一次和二次网的一般自控调节和电脑自控联动系统不在本文讨论之中,由用户按实情和条件自行选择。

4.10 本文系统的一次和二次网的管道经济流速的设计和一次与二次网水量和热量的配置以及水、热平衡设计都按先进合理的标准规范实施即与现有传统供热网并无本质区别,故也不属本文讨论内容。

5 模拟供10 M2 二次网和二次网混水循环泵机组

5.1 模拟10 M2 混水供二次网(图三),一次热源水Q1,二次回水Q2,二次网混水循环泵出水定工况流量Q3,一次回水接力泵(二级泵)定工况流量Q4,其中Q1+ Q2= Q3Q3Q2= Q4 ,所以Q4=Q1,因此调节一次热源水的吸入量Q1只要调节一次回水接力泵(二级泵)的抽出回水量Q4,就会自动水平衡。

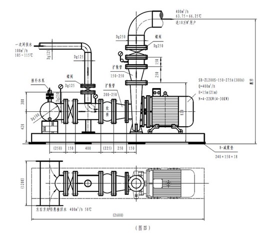
5.2 二次网混水循环泵机组(图四)由插入混水泵吸水支管中的弯头朝该混水泵的吸口方向,插入的弯头紧靠吸水支管上方顶部管壁为好。主要考虑吸水支管中通过的二次回水的速度V≤2m/s,插入多了就会减小过流面积增加流速和阻力。因此插入的一次水管径和插入多少以及水泵吸水支管内径互相之间都应有合理的配置,本文对此不作深入介绍。

5.3 设定二次水单耗4kg/M2,供二次网10 M2 400m3/h。这一循环水量也是应地制宜的,用户可根据各二次网的实情相机设定选择。在这400m3/h 的二次网供水量中,一次热源水量的混入比例是按单位平均受热量的需求和一次热源水温度高低而设定最高值的,现模拟比例为13,但实际运行可按需变频无极调节的。

5.4 在二次网的回水母管上装有2 台不同功能的水泵,其一为一次网回水接力泵(二级泵),其二为二次网混水循环泵。二级泵送回一次网的定工况水量Q4等于被吸入二次网混水循环泵的一次热源水量Q1,二次网的循环水量Q3 被二级泵抽送走Q4 后等于Q2,又Q1 Q2 混合后等于Q3。就这样周而复始地循环,自动达到水平衡。

5.5 这一次网回水接力泵(二级泵)由变频手动或自控调节,一是为了随二级泵抽送出水量Q4 的变化来决定满足一次热源水量Q1 的需求,二是为了二级泵的扬程(压力)控制到恰到好处,使得一次热源水到达插入二次网混水循环泵吸入支管中的弯头出口界面上的余压头几乎等于零。

5.6 在失水量控制在0.15%以内的二次网区域中,原则在各热力站内不设补水泵点,如果有必需则可几个二次站区域性的设置一个补水定压泵点,总之按需而定。

5.7 二次网混水循环泵机组可按(图四)的结构形式除水泵外自行配置接管,也可按图的要求向专业厂订购图四机组。

6 结束语
   
由于本文讨论的新系统,目前看毕竟还是初步设想,尽管这一设想也是建立在现有二级泵和混水供二种系统已成功基础上的,仅把这二者的优点实施了组合,具备同等的可行性。但归根结底还是个节能降耗的新生事物,势必还需与广大业内技术精英们通力合作,进一步深化探索研究和实践。所以本文的推出,意在抛砖引玉,恳请大家一起提高理论研究,共同实践出成果出效益,为我们的行业锦上添花。又由于本文作者水平所限,难免有不妥之处,企盼大家予以严格修正。

 

 

 

 

 

 


上一条: 2012新春发布低速混水泵系列4-55KW 4-75KW 4-90KW